$879,500
 $4,721 est/mo Sourced by Back At You

105 Elvira Way,Thorold, ON L2V 0M7

Thorold, ON L2V 0M7

Share:

Description

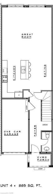
**To Be Built** Welcome to Elvira Way, nestled in the heart of Rolling Meadows, one of Thorold’s fastest growing and most sought after communities. Proudly built by Marken Homes, a trusted name in Niagara renowned for quality craftsmanship and lasting value, this exclusive collection of six freehold two storey townhomes offers the ideal blend of comfort, style, and location. Each home features a thoughtfully designed layout with 3 spacious bedrooms, 2.5 modern bathrooms, and an inviting main floor that includes 9' ceilings, elegant 12"x24" ceramic tiles, and custom maple kitchen cabinetry. Additional features include asphalt driveways, contemporary finishes, and a layout that perfectly suits growing families or busy professionals. Located just minutes from every convenience: 9 minutes to Brock University, 9 minutes to Niagara College (NOTL Campus), 15 minutes to Niagara College (Welland Campus), 10 minutes to Costco, Walmart, and major retail, Moments from the world-famous Niagara Falls. Completion is estimated in approximately one year. secure your future home today in this vibrant, family friendly neighborhood surrounded by parks, schools, and easy highway access. Don’t miss this rare opportunity to own a brand-new home built to the highest standards by Marken Homes. Live where quality meets convenience. contact us today to reserve your unit

Details

MLS #40748166
Listing TypeFor Sale
Sub-TypeResale
StatusActive
Days On Site122
Listing Provided ByHomeLife Professionals Realty Inc. | Alen Sada

Features

Bed(s)3
Bath(s) 3 Total
SQ Feet1,939
Garage2
BasementY
ZoningR

Area Information

ProvinceON
CountyNiagara
CityThorold
Postal CodeL2V 0M7
AreaThorold
Subarea560 Rolling Meadows
Community Name560 Rolling Meadows
Sourced by Back At You

Request a showing

Request a showing

Loading Form
MLS Internet Data Exchange (IDX) information is provided exclusively for consumers’ personal, non-commercial use and may not be used for any purpose other than to identify prospective properties consumers may be interested in purchasing, and that the data is deemed reliable but is not guaranteed accurate by the Information Technology of Southern Ontario MLS.

Contact

Learn More About This Property

ProvinceON
CountyNiagara
CityThorold
Postal CodeL2V 0M7
AreaThorold
Subarea560 Rolling Meadows
Community Name560 Rolling Meadows
Sourced by Back At You
Nearby Listings (Within 1/10 mile)
Price: $659K - $1.99M
sqft: 1,000 - 2,000
Listing Updated: September 24, 2025 at 3:11:43 AM PDT